QUAI LUCIE
LIEU Champigny-sur-marne (94500)
MOA Privée
MOE Core Architectures
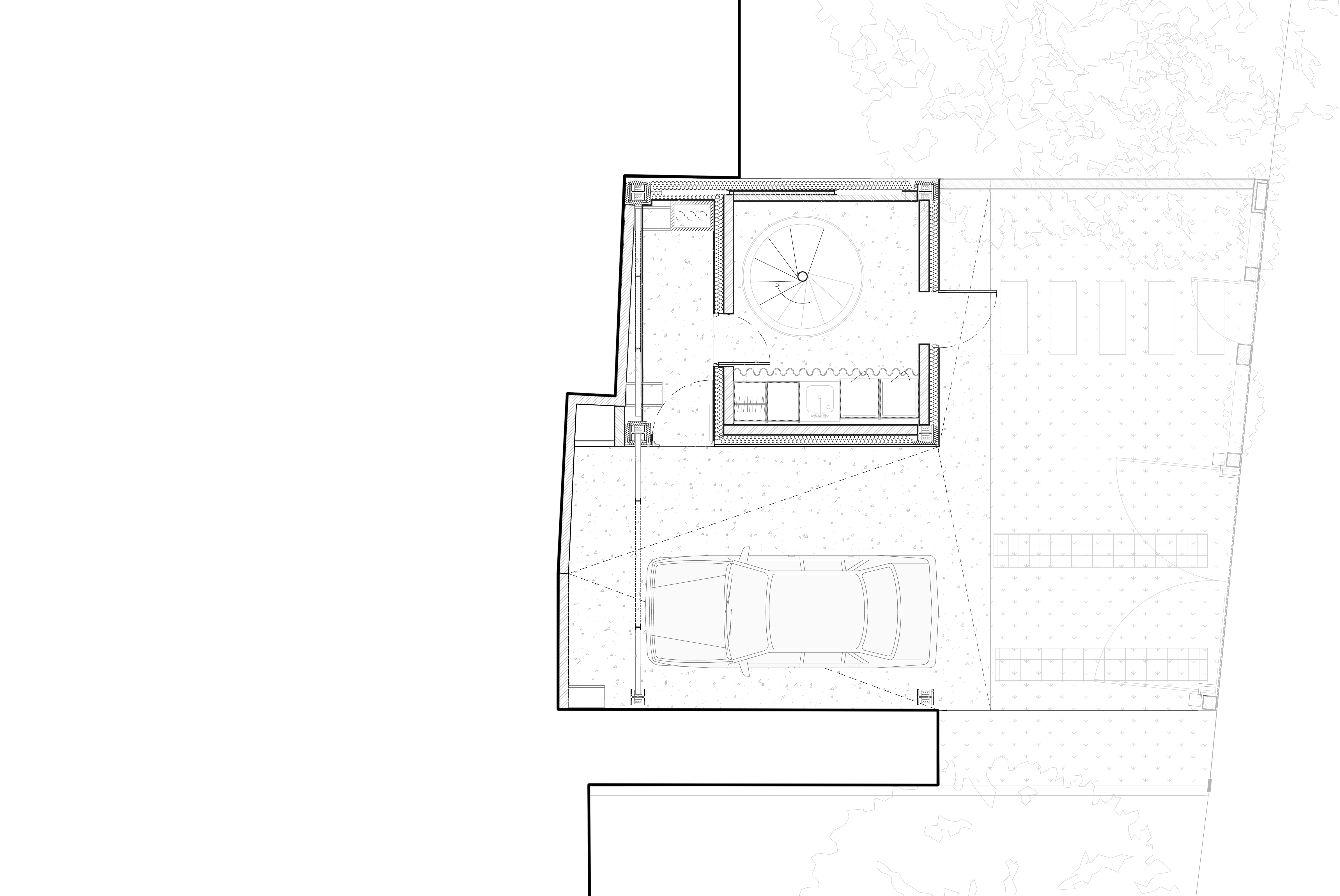
PROGRAMME Construction d’une maison en bord de Marne
SURFACE 180m²
COÛT 450K €HT
MISSION complète
STATUT Récéptionné
Structure en bois- procédé SUTEKI -sur structure béton
Fondation micro pieux
Bardage en bois brûlé
Situé sur les bords de Marne, le terrain qui accueille la maison offre
une vue époustouflante sur le milieu environnant. La maison est
pensée
comme une grande fenêtre ouverte sur la végétation luxuriante et sur la
vision aquatique apaisante qu'offre la Marne.
La simplicité de sa forme,
et l'unité de son enveloppe s'efface au profit du territoire dans
lequel la maison s'inscrit.
Côté jardin, une terrasse se déploie pour profiter d'un cadre végétal rafraichissant.







