LOFTS COMPANS
LIEU Paris (75019)
MOA Particulier
MOE Studiokokumi + Core Architectures
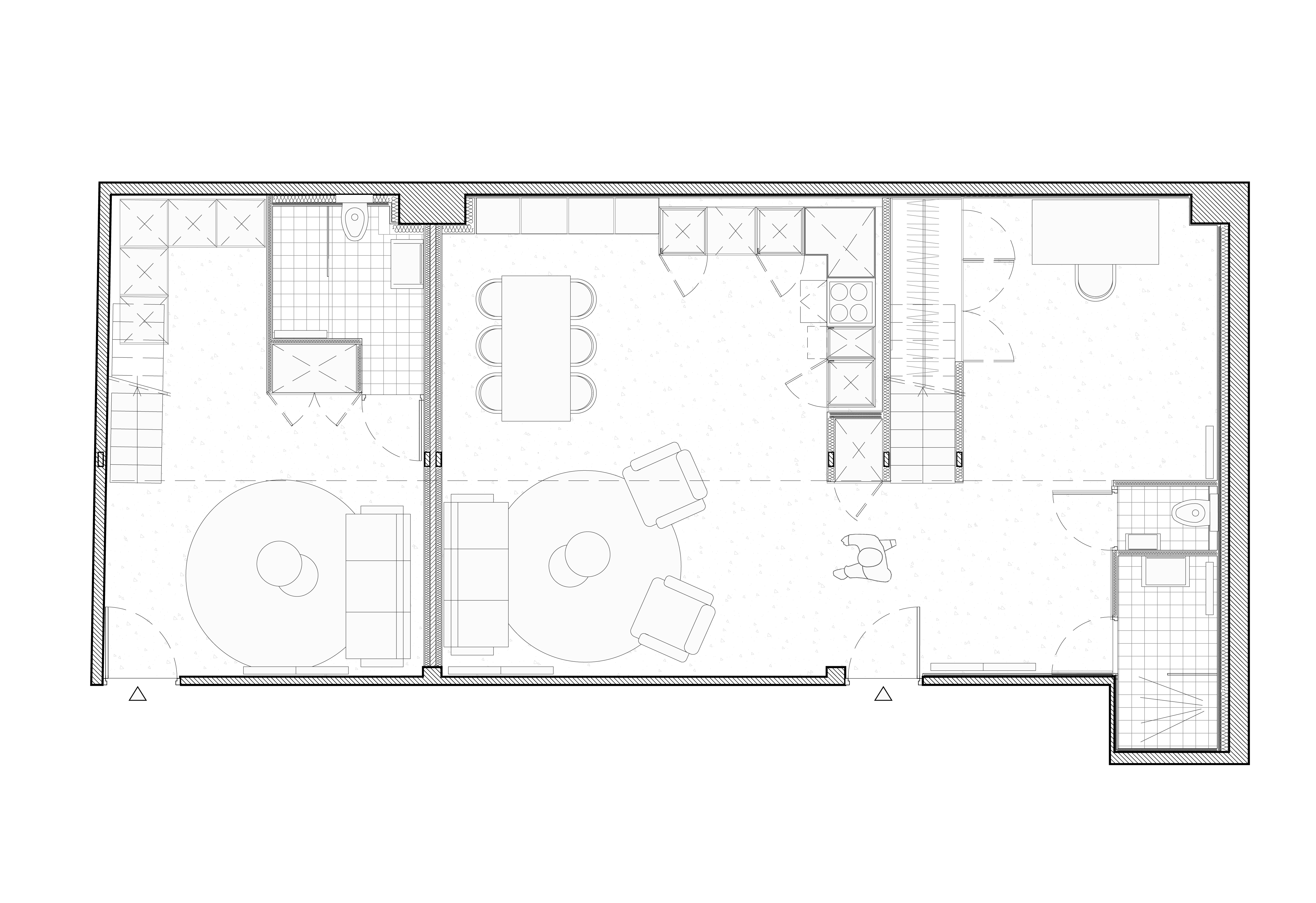
PROGRAMME Transformation d'un atelier deux lofts indépendants
SURFACE 130 m²
COÛT 300K€ HT
MISSION Complète conception et réalisation
STATUT Réceptionné en 2019
Matériaux :
CP bouleau. Vernis mat
Béton coulé
Verre trempé
Transformation d'un atelier en deux lofts indépendants de 130m2 dans le 19ème arrondissement à Paris.
Deux boîtes suspendues, accueillant les chambres se développent autour d'un escalier central.
Totalement vitrée, celles-ci surplombent les espaces de vie, ouvrant sur la perspective extérieure.
L'organisation spatiale est pensée pour permettre une connexion future des deux lofts indépendants
dans le but de créer une surface unitaire sans grands travaux.
Photos: Mario Simon Lafleur



