︎
C
ORE ARCHITECTURES
HABITAT
-
SOLFERINO
-
BEAUFORT
- SAINT-OUEN
- PASTEUR
-
DOLET
- NAVARIN
- BAGNEUX
- NANTERRE
- QUAI LUCIE
- CHATEAU DE TARTIGNY
- CHATEAU DE LA CHEYLANE
- VITRY-SUR-SEINE
- LECONTE DE LISLE
- COMPANS
BUREAUX
- RETROFUTURE-EV
EQUIPEMENTS
- FERME PEDAGOGIQUE -SAINT DENIS
- ENVA MAISON-ALFORT
-
GROUPE SCOLAIRE ST-LAMBERT
- DEMONSTRATEUR - VERSAILLES
- MEDIATHEQUE -VIRE NORMANDIE
-
MUSEE RENAULT - PARIS
-
MAISONS DES X - PARIS
COMMERCIAL
- RETROFUTURE-EV - BASE NAVALE
-
FULGURANCES - PARIS
- MAGNIV - PARIS
URBANISME
- EUROPAN 14 - EVREUX
PUBLICATIONS
C
ontact
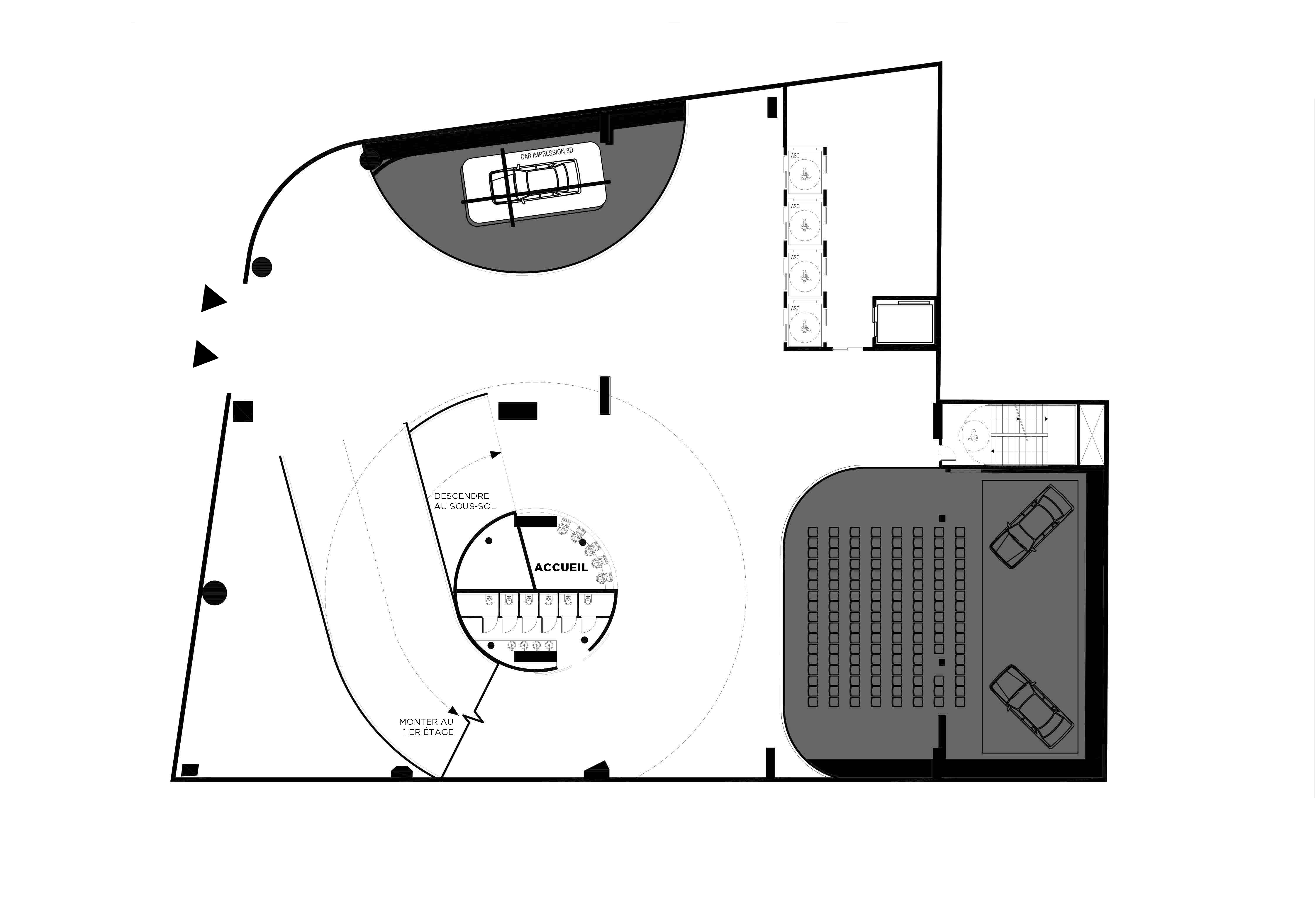
Musée RENAULT
LIEU
Paris ( 75015)
MOA
RENAULT - RRG
MOE
Core Architectures
PROGRAMME
Transformation d'un garage en centre musée et bureau pour la marque
SURFACE
3500 m²
COÛT
28M €HT
MISSION
appel a Projet -ESQUISSE
STATUT
- sans suite
Running on Cargo