LIEU Paris (75016)
MOA Château les Valentines
MOE Core Architectures +
Studiokokumi
PROGRAMME Réhabilitation d’un hôtel particulier
SURFACE 350 m²
COÛT 450K€ HT
MISSION Complète
STATUT Réceptionné en 2019
Matériaux :
Briques
Chêne massif
Béton ciré
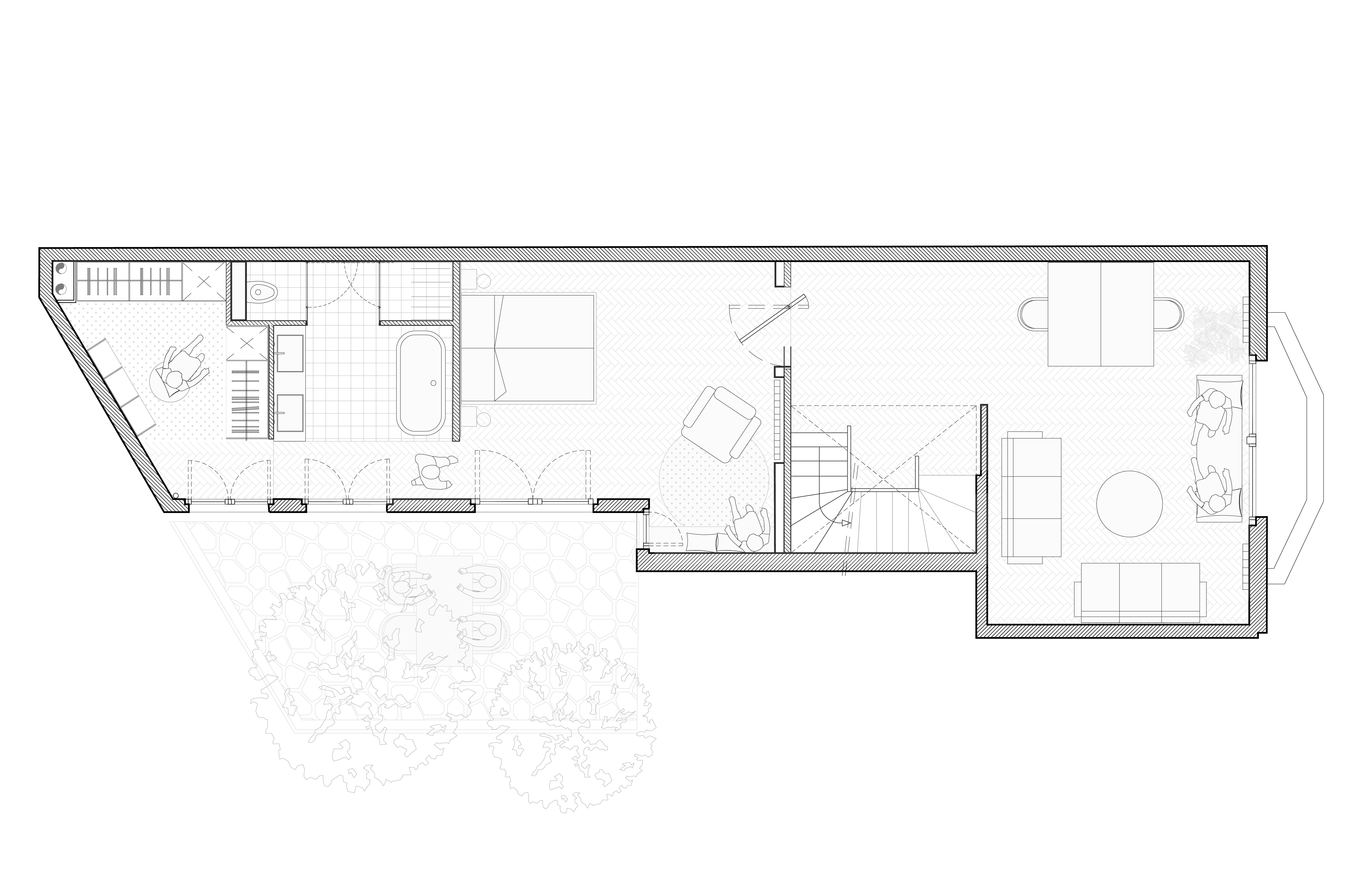
Restructuration lourde et aménagement intérieur de l'hôtel Marette, dans le 16ème arrondissement, à Paris.
Construit en 1924 par l'architecte Pol Abraham, cette hôtel particulier se développe sur quatre plateaux d'une
surface totale de 350m2.
L’organisation permet de laisser libre les plateaux afin que les espaces puissent bénéficier de la lumière naturelle de
la cour intérieure ainsi que de la rue.
Photos: Mario Simon Lafleur





